Upper Green, Mitcham
- Home
- Upper Green, Mitcham
Upper Green, Mitcham
RIBA Stages: 4-7
Status: Detailed Design
Contract Value: Confidential
Description: Commercial, Residential Flats
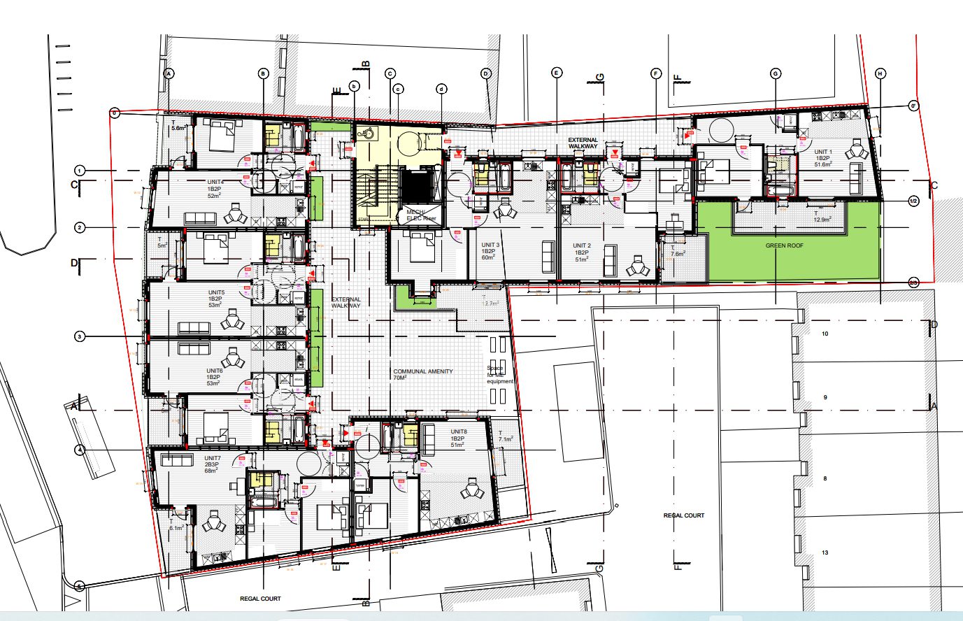
Planning Architecture placed a bid for this project to take from RIBA stage 4-7, the proposal is to demolish the existing buildings and replace them with a new mixed-use building. A retail, restaurant or office use is proposed on the ground floor, with an active frontage across the whole of the site. The ground floor is configured so that it could be converted into multiple units if required over the lifetime of the building. The upper floors will house 20 flats with mixed unit sizes.
Servicing the retail units will take place through the rear wing of the building which houses the waste and cycle storage, Staff WCs, lockers and Staff room. Delivery of goods and disposal of waste will take place through a corridor connecting these spaces to the side access, this will require careful design and considerations when construction commences.
The modern style of the building required a careful approach when providing the detailed design to ensure it is compliant and be of a high quality. The proposal has brick, render and cladding on the external walls, use of concrete Comflor and dropped ceilings to conceal M&E elements. Consultation with SPD and Fire brigade was initiated as the building will be constructed using the Steel Framing System.
We will oversee the contract administration and liaise with all the consultants to assist in delivering the project within the budget and timeline.